CARATTERISTICHE IMMOBILE
RICHIESTA € 2.450 / MESE CEDOLARE SECCA
RICHIESTA € 3.300 / MESE REGIME ORDINARIO
CLASSE ENERGETICA F
- METRI QUADRI: 280
- CAMERE DA LETTO: 4
- BAGNI: 4
- PIANI: 2
- ACCESSO AI DISABILI: SI’
- GIARDINO PRIVATO: SI’
- METRI QUADRI GIRDINO: 500
- GARAGE: SI’ SOPPALCATO
- METRI QUADRI GARAGE: 23 + 22 SOPPALCO
- ARREDAMENTO: CUCINA ARREDATA COMPLETAMENTE
- CAMINO: SI’
- CONDIZIONI: OTTIME
- ANNO DI COSTRUZIONE: 1900
- RISCALDAMENTO: AUTONOMO
- ARIA CONDIZIONATA: AUTONOMA
- CAUZIONE: FIDEJUSSIONE BANCARIA 6 MENSILITA’
- SPESE CONDOMINIALI: € 1.400


























RIF A 007 MODENA – SALICETA SAN GIULIANO – VILLAGGIO ZETA
STUDIO IMMOBILIARE PROPONE IN LOCAZIONE PORZIONE DI CASA TERRA CIELO SU DUE LIVELLI.
L’IMMOBILE HA ACCESSO AL PIANO TERRA SENZA BARRIERE ARCHITETTONICHE, DOVE SI SVILUPPA UNICAMENTE LA ZONA GIORNO COSì DIVISA: INGRESSO SPAZIOSO, SALONE DOPPIO, COLONNE, SOFFITTI A BOTTE E CAMINETTO CREANO UN AMBIENTE RAFFINATO E MOLTO ACCOGLIENTE. LA LUCE NON MANCA DATA DALLE NUMEROSE FINESTRE E PORTE FINESTRE CHE DANNO ACCESSO AL GRANDE GIARDINO PRIVATO.
SEMPRE AL PIANO GIORNO TROVIAMO LA CUCINA ABITABILE, COMPLETAMENTE ATTREZZATA, UN LOCALE LAVANDERIA ED UN BAGNO DI SERVIZIO.
I PAVIMENTI DELLA ZONA GIORNO SONO IN COTTO ORIGINALE.
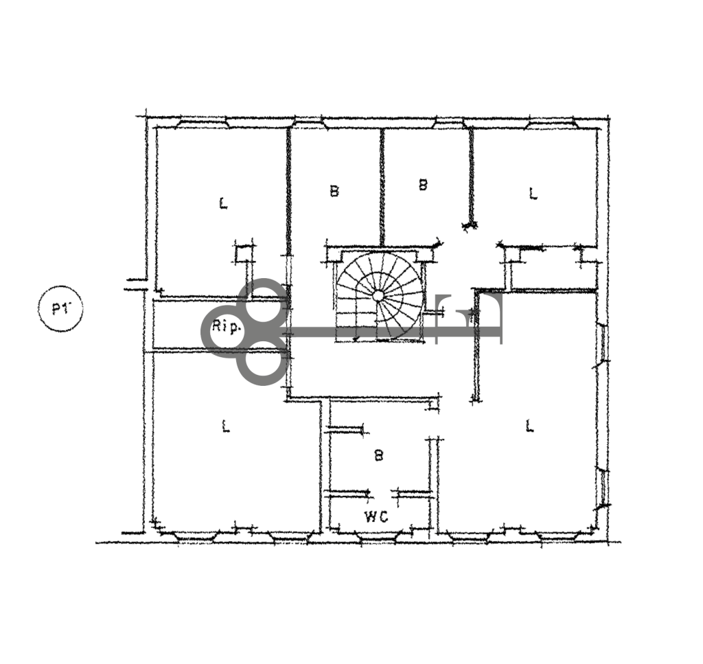
TRAMITE UNA MERAVIGLIOSA SCALA ELICOIDALE DI IMPORTANTI DIMENSIONI SI ACCEDE AL PIANO PRIMO DOVE TROVANO POSTO QUATTRO CAMERE DA LETTO MATRIMONIALI, TRE BAGNI CON DOCCIA O VASCA OLTRE AD UNA CABINA ARMADI DI GENEROSE DIMENSIONI. I SOFFITTI, IN LEGNO CON TRAVI A VISTA, SONO ALTISSIMI E IL PARQUET LO TROVIAMO IN TUTTE LE STANZE.
L’IMMOBILE E’ DOTATO DI IMPIANTO DI RISCALDAMENTO AUTONOMO E VIDEOCITOFONO.
L’IMPIANTO DI CONDIZIONAMENTO E’ PRESENTE IN DUE CAMERE DA LETTO E NELLA SALA AL PIANO TERRA.
COMPLETANO LA PROPRIETA’ UN AMPIO GIARDINO PRIVATO ED UN GARAGE SOPPALCATO ADATTO PER AUTO DI GRANDI DIMENSIONI, OLTRE A POSTI AUTO SCOPERTI IN CORTILE CONDOMINIALE.
VERRA’ CONSEGNATO ARREDATO DELLA SOLA CUCINA. LIBERO DA OTTOBRE.
IL PREZZO DI AFFITTO MENSILE È DI € 2.450 IN CEDOLARE SECCA PER PRIVATI O € 3.300 IN REGIME ORDINARIO.
E’ RICHIESTA UNA FIDEJUSSIONE BANCARIA DI 6 MESILITA’ COME CAUZIONE.
RICHIESTA € 2.450 / MESE CEDOLARE SECCA
RICHIESTA € 3.300 / MESE REGIME ORDINARIO
CLASSE ENERGETICA F
CARATTERISTICHE IMMOBILE
- METRI QUADRI: 280
- CAMERE DA LETTO: 4
- BAGNI: 4
- PIANI: 2
- ACCESSO AI DISABILI: SI’
- GIARDINO PRIVATO: SI’
- METRI QUADRI GIRDINO: 500
- GARAGE: SI’ SOPPALCATO
- METRI QUADRI GARAGE: 23 + 22 SOPPALCO
- ARREDAMENTO: CUCINA ARREDATA COMPLETAMENTE
- CAMINO: SI’
- CONDIZIONI: OTTIME
- ANNO DI COSTRUZIONE: 1900
- RISCALDAMENTO: AUTONOMO
- ARIA CONDIZIONATA: AUTONOMA
- CAUZIONE: FIDEJUSSIONE BANCARIA 6 MENSILITA’
- SPESE CONDOMINIALI: € 1.400
