CARATTERISTICHE IMMOBILE
RICHIESTA € 450.000 CLASSE ENERGETICA G
- MQ: 178
- LOCALI: 6
- BAGNI: 2
- PIANO: 4°
- ASCENSORE: SÌ
- BOX: 1
- MQ BOX: 17
- BALCONE: SÌ
- CANTINA: SÌ
- CONDIZIONI: ABITABILE
- RISCALDAMENTO: CENTRALIZZATO
- ARIA CONDIZIONATA: AUTONOMA
- SPESE DI CONDOMINIO: € 250 / MESE
- STATO AL ROGITO: LIBERO

















RIF 105 MODENA – CENTRO STORICO. AFFACCIATO SU UNA DELLE VIE PIÙ PRESTIGIOSE DELLA CITTÀ, IN ZONA RICERCATA ED AMBITA PROPONIAMO IN VENDITA AMPIO E LUMINOSO APPARTAMENTO.
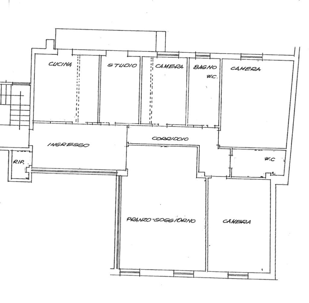
NEL CONTESTO DI PALAZZO STORICO DI CORSO CANALCHIARO, L’IMMOBILE CHE PRESENTIAMO SI COLLOCA A UN PIANO ALTO SERVITO DA ASCENSORE, ED È COSÌ SUDDIVISO: UN GRANDE INGRESSO, COME CONSUETUDINE DELL’EPOCA, SALA CHE HA AFFACCI SUL CORSO, CUCINA ABITABILE CON PORTA FINESTRA CHE DA ACCESSO AL BALCONE SUL RETRO DEL PALAZZO E STUDIO/CAMERA OSPITI COMPLETA LA ZONA GIORNO.
BEN SEPARATA TROVIAMO DI SEGUITO LA ZONA NOTTE CON 3 CAMERE E 2 BAGNI.
COMPLETANO LA PROPRIETÀ UNA CANTINA PIANO TERRA E UN GARAGE AL PIANO SEMINTERRATO.
RICHIESTA € 450.000
CLASSE ENERGETICA G
CARATTERISTICHE IMMOBILE
- MQ: 178
- LOCALI: 6
- BAGNI: 2
- PIANO: 4°
- ASCENSORE: SÌ
- BOX: 1
- MQ BOX: 17
- BALCONE: SÌ
- CANTINA: SÌ
- CONDIZIONI: ABITABILE
- RISCALDAMENTO: CENTRALIZZATO
- ARIA CONDIZIONATA: AUTONOMA
- SPESE DI CONDOMINIO: € 250 / MESE
- STATO AL ROGITO: LIBERO
